Индустриальный парк Чехов
47 км Симферопольского шоссе
Промышленно-логистический кластер
от 200 000 ₽ / сотка

file.webp
.webp)
file (1).webp
.webp)
file (2).webp
.webp)
file (4).webp
.webp)
file (5).webp
.webp)
file (6).webp
О ПРОЕКТЕ
Индустриальный парк «Чехов» расположен всего в 2,5 км от Симферопольского шоссе (М2 «Крым»), что обеспечивает быстрый выезд на юг и удобную логистику в Москву и регионы. Территория включена в промышленно-логистический кластер, а значит, здесь созданы все условия для развития бизнеса. Участки оснащены ключевыми коммуникациями — электричеством, газом, водоотведением и широкими дорогами с круглогодичным подъездом.
Парк подходит для размещения складских и логистических комплексов, пищевых и производственных предприятий. Дополнительным преимуществом является доступ к трудовым ресурсам: в радиусе парка проживает более 500 тысяч человек, ближайшие города — Чехов, Серпухов и Подольск. Такой формат делает «Чехов» надёжной площадкой для быстрого запуска и масштабирования бизнес-проектов.
КОММУНИКАЦИИ
.webp)
Электричество
Собственные ТП, 2 категория надежности
.webp)
Центральный газ
Прямой договор
.webp)
Водоотведение
Согласованные лимиты по отведению в водные объекты
КОММУНИКАЦИИ
.webp)
Электричество
Подключение производится напрямую ПАО «Россети»

Газ
Возможно подключение

Водоснабжение
Возможно подключение
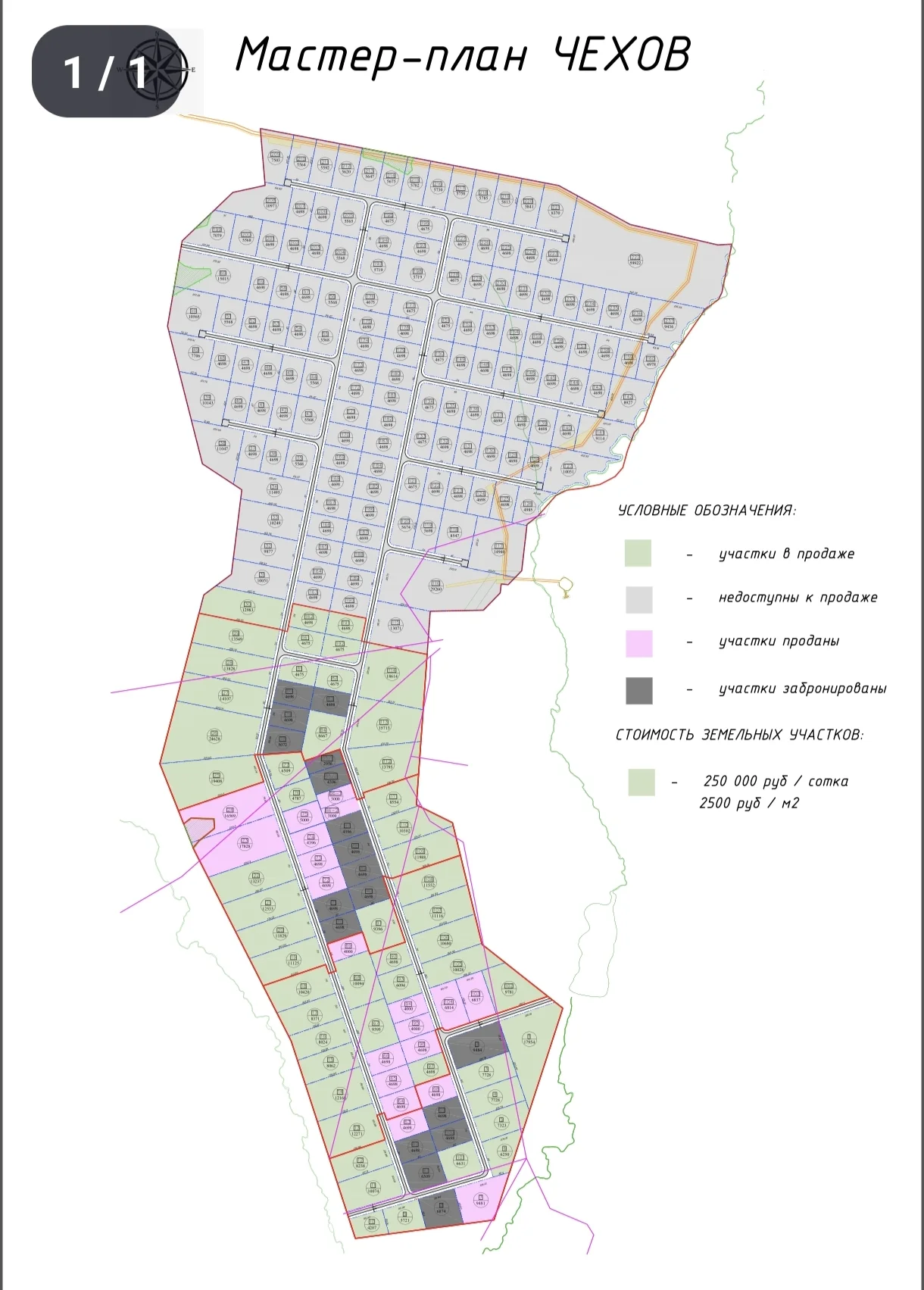
ГЕНЕРАЛЬНЫЙ ПЛАН

Появились вопросы?
ОСТАВЬТЕ ЗАЯВКУ НА ЗВОНОК
Звполните форму и наш менеджер свяжется с вами для проведения бесплатной консультации.
Подберём для вас подходящий земельный участок из нашего каталога, покажем объект и поможем быстро оформить сделку.
Отправляя запрос, Вы подтверждаете Согласие на обработку персональных данных
КАК ДОБРАТЬСЯ?
Симферопольское шоссе
47 км от МКАД